
Prachtig gelegen nieuwbouw aan 6% BTW in de wijk Elshout te Schoten.
- Adres: Fortbaan 113, 2900 Schoten
- Beschikbaar: Mei 2023
Omschrijving




Deze moderne BEN nieuwbouwwoning zal volledig afgewerkt beschikbaar zijn:
- Lot 3 wordt verkocht met nieuwbouwwoning aan 6% BTW!
- Afmetingen perceel: 444m2 breedte 17.13m diepte 44.82m
- Type bebouwing: Open bebouwing
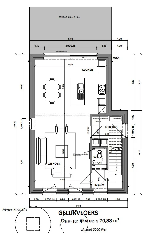
- Oppervlakte woning: 142m┬▓
- Ingerichte keuken
- Ingerichte badkamer
- Zonnepanelen
- BEN
De woning wordt schilderklaar opgeleverd.


Omgeving
- Bushalte: 200m
- Bakker: 2km
- Supermarkt/kruidenier: 2km
- Apotheek: 2km
- School: 300m






