,

Vergunt project in Brasschaat met 7 appartementen en 1 handelsruimte verkocht

Nieuwbouw 7 luxe appartementen en handelsruimte

Dit project is recent verkocht aan een priv├® investeerder.

Omschrijving

  • Vergunt project met de mogelijkheid van verkoop van de appartementen aan 6% BTW.
  • Prachtig gelegen in het centrum van Brasschaat. Alle winkels en horeca zijn op wandelafstand.┬á
  • De bestaande panden moeten gesloopt worden en een volledige nieuwbouw opgericht.
    • 1x handelsruimte
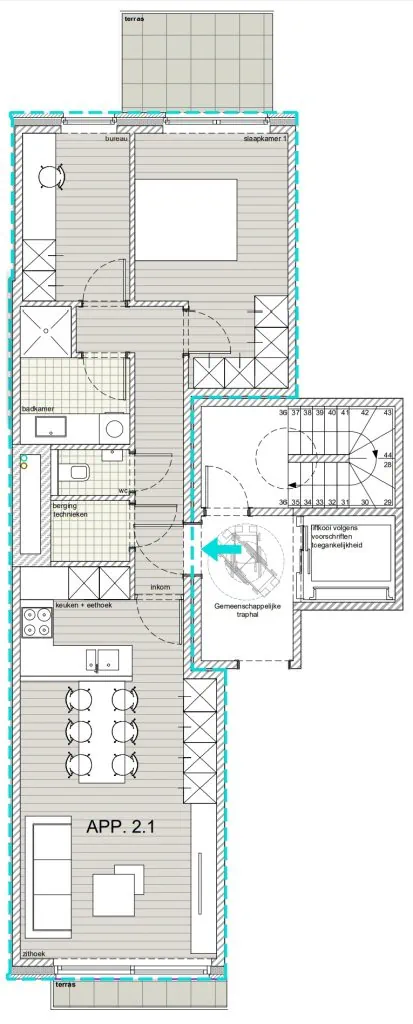
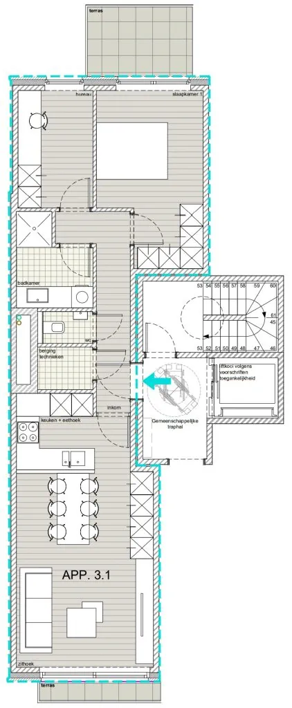
    • 3x 1-slaapkamer appartementen met bureel
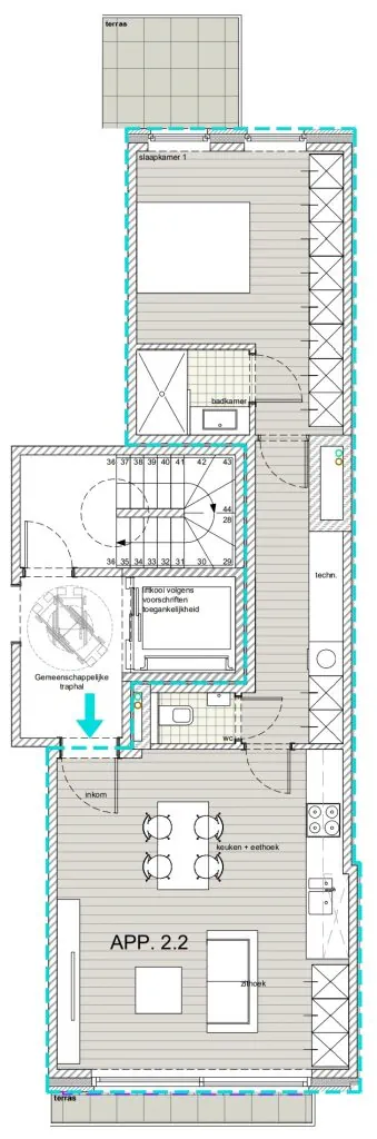
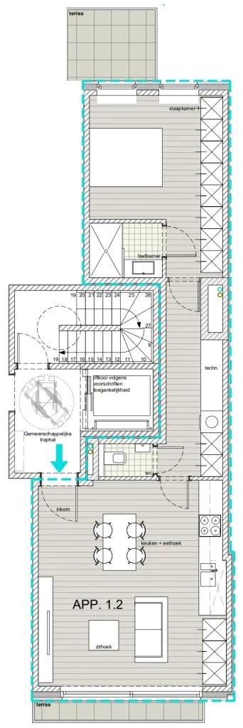
    • 3x 1-slaapkamer appartement
    • 1x loft op de bovenverdieping

Omgeving

  • Bakker: 50m
  • Supermarkt/kruidenier: 50m
  • Apotheek: 50m
  • School: 50m

Recent


Blijf op de hoogte

Schrijf je nu in voor onze nieuwsbrief.

GDPR

Lees ons privacy policy voor meer info.