
Afbraak handelspand met bovenliggende flats en nieuwbouw van appartementsgebouw met 4 exclusieve appartementen. Project verkocht na bekomen uitvoerbare vergunning.
- Adres: Hector Denisstraat 33, 1050 Elsene (aan park Ten Bosch)
- Bouwvergunning verkregen: Juli 2021


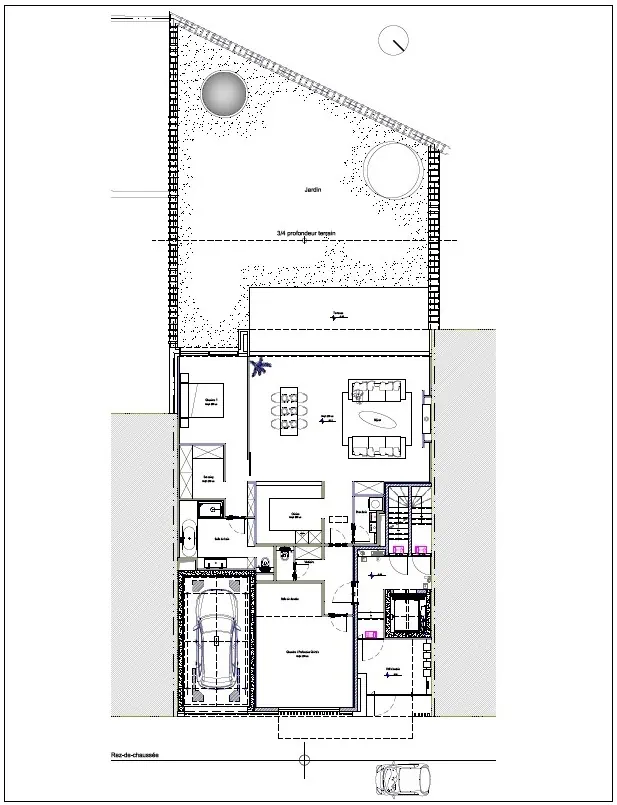
Omschrijving
GLV: luxe appartement van 146m┬▓ met 1 of 2 slaapkamers, eventueel met afzonderlijke studio of werkruimte, tuin en terras.
- 1e luxe appartement: 47m┬▓ met 3 slaapkamers, terras voor en achter
- 2e luxe appartement: 147m┬▓ met 3 slaapkamers, terras voor
- 3e en 4e luxe duplex appartement: 241m┬▓ met 3 of 4 slaapkamers, terras voor en achter
Ondergronds garage met 4 autostaanplaatsen, fietsenberging met garagelift.
Omgeving
- Bakker: 300m
- Supermarkt/kruidenier: 300m
- Apotheek: 600m
- School: 400m






